Tilojen sijainti kiinteistössä sekä toisiinsa nähden:
570 m2
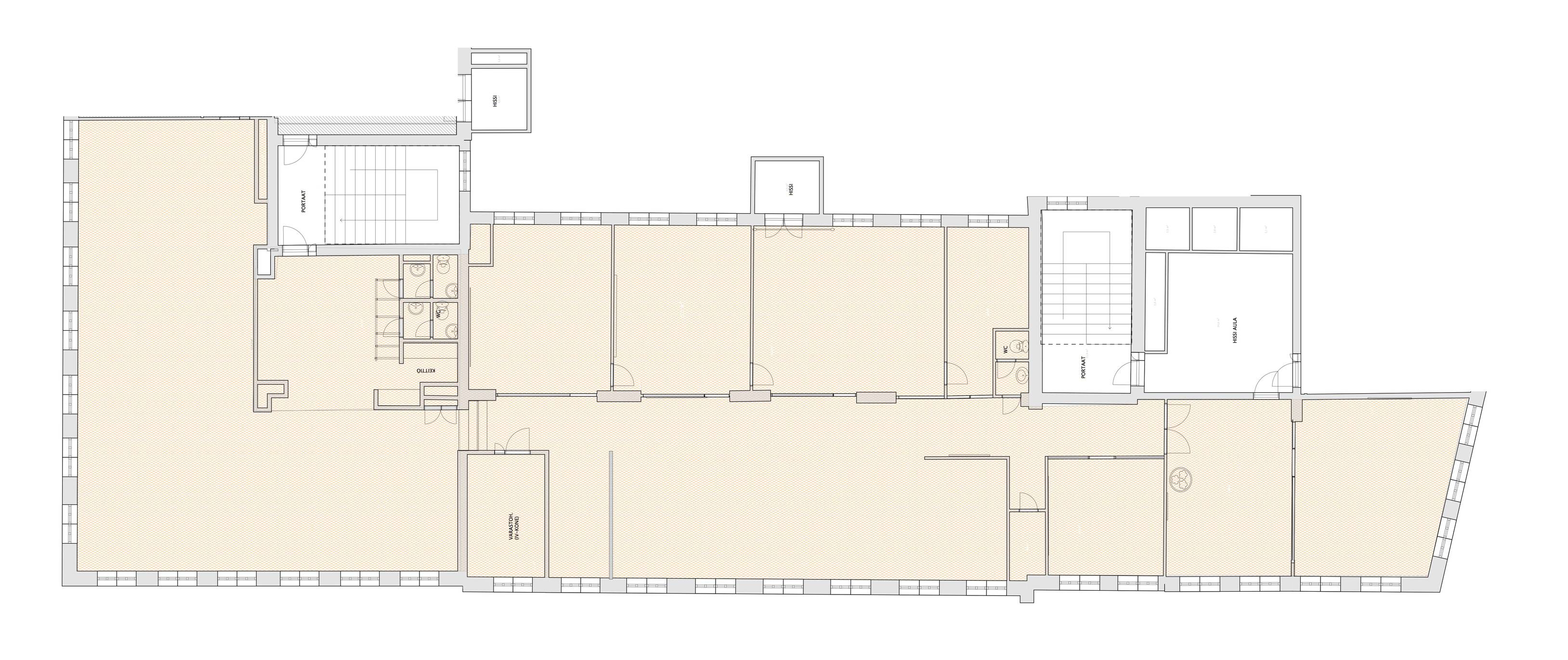
Monitilatoimiston layout tällä hetkellä (klikkaa suuremmaksi):
Esimerkki tiiviistä kalustesijoittelusta:

Muita kalustesijoitteluideoita:

340 m2
Layout ja esimerkki kalustesijoitteluksi (klikkaa suuremmaksi):
3D-mallinnus:

164 m2
Pohjakuva ja esimerkkejä kalustesijoittelusta (klikkaa suuremmaksi):
