5. kerroksen valoisa ja viihtyisä yhdistelmä työ- ja neuvotteluhuoneita sekä avotoimistoa. Osassa tilasta on merinäköala etelään ja osassa Hietalahden satamaan. Tiloissa on jäähdytetty ilmanvaihto, nopea valokaapelointi, kaunis keittiö, suihkuhuone ja 3 erillistä wc-tilaa eri päissä toimistoa, keittiö/taukotila sekä myös tavarahissi. Tilasta on pääsy toiseen rappuun. Toimisto on peruskorjattu vuonna 2004. Vuonna 2017 on vaihdettu lattiamateriaalit sekä tehty huoltomaalaus.
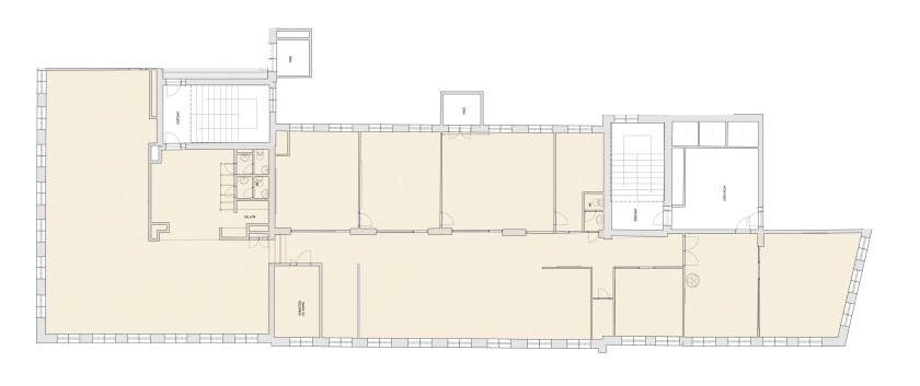
Tarvittaessa viereinen 164 m2 tila voidaan yhdistää tähän tilaan. Ko. lisätilaan tulee myös toinen tavarahissi. Pohjakuva muunneltavien tilojen tämänhetkisestä layoutista:

Tiloista on olemassa tuore 3D-malli kalustesijoittelun suunnittelua varten. Mallin avulla voidaan “reaaliajassa” suunnitella layout uusia tai olemassaolevia kalusteita käyttäen:

Arkistokuvia:
Tilan 3D-mallilla tuotettu havainnevideo (kuvitteellinen sisustus)










